



17475 TAVERN, BROOKSVILLE, FL, 34604
$264,995
About This Property
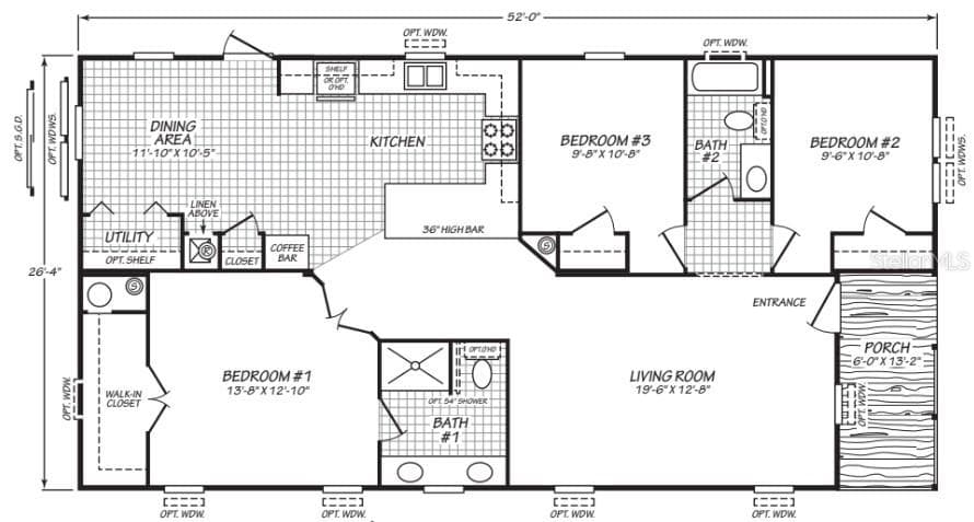
One or more photo(s) has been virtually staged. Pre-Construction. To be built. Brand-new construction on private land under $280,000 — something almost impossible to find in today’s market. PROVIDING $5,000 BUYER CONCESSIONS. Currently under construction this brand-new 3-bedroom, 2-bath Cavco Economy home delivers what most buyers are searching for and rarely find: new construction, no renovations, and no compromises. Set on a 0.24-acre lot and featuring a welcoming covered front porch, the home blends modern efficiency with timeless curb appeal. Built by Cavco Industries, the parent company of Fleetwood Homes, this residence is constructed in a controlled factory environment for consistent quality, durability, and compliance with federal HUD standards. The property will include a new well, new septic, and brand-new systems throughout, all backed by a manufacturer’s limited warranty. No deferred maintenance. No surprises. Just a fresh start built from the ground up. Photos may include renderings or similar completed homes. Construction is in progress; completion forthcoming.
GARDEN GROVE
Active
SAND DOLLAR REALTY GROUP INC
5
Interested in This Property?
Schedule a showing or ask a question. We respond in under 2 hours.
Call (813) 618-7653Request a ShowingMLS# 20c8d646f6a3bce7ece6d606e6280dd9